会员风采
广西首个第四代住宅:南宁“华宏云墅”项目
◎ 广西首个第四代住宅项目
项目地点:广西南宁市高新区
建筑面积:145608㎡
设计时间:2024年7月~2024年12月
建设单位:广西华宏兴盛房地产有限公司
设计单位:华蓝设计(集团)有限公司
设计团队:建筑设计一院
项目概况
本地块项目位于广西南宁市高新区科园大道东侧,科德路北侧。项目地理位置优越,交通便捷。周边2km距离内有北投体育公园、明月湖欧洲风情小镇、明月湖公园、TOD 商业中心(规划)、动物园和邕江公园等多个节点。
该项目总用地面积为30945.08㎡,土地性质为居住兼容商业用地。规划容积率为≤3.1,建筑密度≤22%,绿地率≥35%,建筑限高≤80 米。
项目用地为长方形,地势平缓。规划设计有14栋建筑,其中高层住宅12栋,多层商业及公建配套2栋。沿街设置商业,满足小区居住配套功能。项目总计容建筑面积95929.74㎡。
项目背景
为全面贯彻落实党的二十大精神,服务高质量发展大局,2024年4月19日,南宁市自然资源局推出了《关于优化规划管控要求促进住宅品质提升的若干措施》(以下简称《措施》),鼓励建设高品质住宅,为满足人民对美好生活的向往、增强群众的获得感与幸福感贡献力量。《措施》鼓励在南宁市试行“空中花园住宅”(以下简称“第四代住宅”),鼓励利用挑高、错层、外挑式的大阳台集中打造户内空中花园,增加居家活动空间多样性,丰富城市建筑景观,推动住宅产品更新迭代,并给予了充分的鼓励政策与保障措施,全面支持“第四代住宅”项目落地实施。
“第四代住宅”作为住建部提出的“好房子”建设中一个新的尝试,近年来在全国各地如福建、四川等地已逐渐有产品落地。这些落地产品主要表现为各标准层结合外挑式的错位大阳台,赠予住户更大的户内外过渡空间和更大的使用面积。这些产品一经推出,便获得了市场高度的关注和较好的销售成绩,体现了其优越的产品特征及良好的市场前景。
建设单位在拿地后,希望能在当时激烈的项目竞争环境下,既能找到一个全新的差异化开发思路,以实现产品溢价及从市场内卷中突围,又能保证开发利润做满3.1的容积率,同时借此项目竖立起自身的地产优质品牌。
设计思路
本项目的设计难点在于如何在做满3.1容积率的前提下,做出一个超越传统住宅的产品,同时能控制工程造价以保证利润空间,并能使该项目获得较高的市场关注度及快速的销售去化。
项目设计团队经过对市场的详细调研和分析,并基于南宁市第四代住宅的政策环境,结合设计团队自身研发的专利户型,提出了新的第四代住宅产品概念——“平墅”,通过平墅各户“局部挑高、其余叠合”的形体构成方式,实现建筑体积在规划条件下的最大化,从而实现了同时满足容积率与实现产品差异化的核心设计目标。
整体布局
“华宏云墅”项目用地为狭长的长方形,南北宽度仅约100米,建筑的南北向间距受到了限制。因地块的容积率较高,绿地率、建筑密度、限高、日照等也有较多的约束,而“第四代住宅”的投影面积较于传统住宅的要大许多,所以在规划设计中,如何在布置更多“第四代住宅”的同时又能最大限度地满足各项规划指标、消防要求及规范要求,是一个全新的挑战。实践中,设计团队与政策制定部门、项目主管部门、技术审查单位充分沟通,协同推进,逐一解决了包括大出挑阳台的消防扑救规范适用,住宅间距、日照计算、建筑占地范围的界定等技术难题。
项目布局为南北分布的两排共12栋独栋高层住宅,整体采用第四代住宅的“森林城市”理念来进行设计,通过两个形象入口形成的纵横礼仪轴线,串联起小区主要的景观轴线,并将传统住宅的水平园林,通过各楼栋的空中花园垂直展开,形成了四代住宅特有的立体式绿化景观与生活体验。场地内形成多处景观节点,通过花木、流水、艺术雕塑、花池平台等的点缀,并结合下沉水景广场、健身场所与架空休闲的丰富功能,为居民提供了优质舒适的休息活动空间。

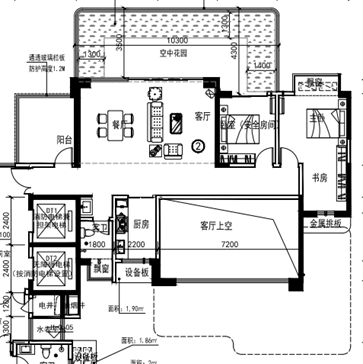
户型设计

奇数层 偶数层
项目的户型设计以南宁市关于第四代住宅的相关规定为依托,在全国现有的第四代住宅产品仅有花园阳台挑高的基础上升级创新,首创了“平墅”概念,即在平层的住宅空间中,通过餐客厅及花园阳台的同时挑空,扩大了室内外空间的尺度和融通性,并改善了采光和通风,提高了居住的舒适性;同时由于“平墅”产品的面积叠合性较优,从而满足了开发商既要通过四代住宅产品实现市场的差异化竞争,又要满足容积率3.1的利润要求,还保证了整个小区品质不低于传统中高档住宅的综合诉求。
“平墅”的户型特征是通过奇偶层客厅及阳台的错位而其他房间保持不变的方式,既能实现户型面积的最大叠加,又能实现户户高客厅、层层大阳台的大尺度居住空间。

01
设置6.2米层高的空中花园
每户第四代住宅中,均定制建面约40㎡的空中庭院,实现了“一户一庭院,一墅一世界”的愿景。居民在自家阳台既可种植绿植,亦可闲庭信步,享受大自然的美好,感受与众不同的居住品质。以建面约128㎡的户型为例,空中花园的层高约6.2米,宽度约10米,进深约3.6米,花园面积超过40㎡。空中花园除了可以闲庭漫步、散花种草、家庭party等活动以外,还可以作为“低空经济”中的大型无人机降落场地。
02
设置6.2米层高的户内餐客厅
每户均设6.2米层高的餐客厅,加大了公区的空间尺度,提升了居住的整体档次。宽敞的空间既让人感到自由和放松,也为住户进行空间多样化改造、创造多元化生活场景提供了更多可能性。户与户之间采用基于设计团队2012年的设计专利,通过挑高空间的错层安排,实现了户户客厅挑高两层的设计目标。

03
实现LDKBG(客餐厨+阳台+花园)的一体化
项目设计把超大的横向客厅(L)、餐厅(D)、厨房(K)、阳台(B)花园(G)均融合为一体。以项目的某户型为例,其LDKBG平面的最大面宽及进深均为9.3m左右,融合面积将近87㎡,由此形成的公共活动空间比传统住宅扩大了近50%。同时,6.2m的层高也放大LDKBG的垂直空间融合,使得整个户内公区的连通空间体积达到近500m³,从而给住户带来前所未有的空间体验。
04
避免四代初期产品中房间与阳台的视线干扰
目前国内的大部分四代住宅的客餐厅并未挑高两层,故多形成上一户的房间坐落在下一户的花园阳台之上,形成了视线干扰。本项目的户内餐客厅挑高后,花园阳台上空的房间均属于本户所有,可最大程度上规避上下层不同户之间的视线干扰,尽可能地住户间的私密性。对于无法避免的个别他户房间设置于空中花园之上的,通过视线分析,设置视线遮挡板。
05
改善户内采光与空气环境
本项目的空中花园与客餐厅层高均为6.2m,其中空中花园的主要进深区间为2.4m-4.0m,其空间高度与进深的比值在1.55-2.58之间,这个比值意味着住宅能接纳更多的阳光与空气进入户内,从而使室内更加明亮,同时也有助于室内外的空气流通和室内温度的自然调节。
立面设计
本项目设计风格为现代主义风格。主楼色彩以米白为主,辅以深灰色的线脚与古铜色的压边,加上玻璃栏杆和玻璃窗的反射光影,在阳光下自然形成了丰富的灰度层次。建筑不做过多的装饰,着力通过错层设计及大阳台的的挑高空间,以丰富的建筑体块变化形成天然的雕塑感,呈现出与传统住宅截然不同的视觉标志。

建筑顶部效果 沿街透视图
在立面设计中,设计项目组应用AI效果图生成技术,通过户型生成的模型,快速自动生成多个立面配色及材质方案,AI仿真所特有的真实场景及自然光线,可以确保配色及材质的高仿真度,避免了以往效果图基于渲染软件的模拟光线与色彩失真的情况,从而大幅减小了最终实景效果与常规效果图之间的色差及效果偏差,更好地保证了设计到建造的一致性。

AI生成效果
3DMAXS+PS生成效果
总结与展望
南宁市第一个“第四代住宅”的面世,弥补了该类型住宅在广西的空白,为广西及南宁市加快推动“好房子”示范建设,提升住宅品质和服务标准,做出了有益尝试。另一方面,“第四代住宅”与传统住宅形成显著差异,能较好地满足改善型需求,成为房企突破市场内卷以及地方“稳楼市”的的重要手段。
目前,第四代住宅除了通过赠送露台、共享平台等设计实现得房率140%以上,为住户提供更多活动空间(如空中花园、家庭互动区),大幅提升居住舒适度之外,其空中花园的垂直绿化,已显著提升建筑绿化率,有助于减少城市热岛效应,改善空气质量。而在将来的第四代住宅实践中,设计将进一步围绕可持续性、智能化、人性化、社区化以及技术融合展开,旨在应对城市化、气候变化、技术进步和社会需求的变化——即降低四代住宅建设成本、消除花园阳台之间的视线干扰、处理好植物根系对建筑物的侵蚀、通过可再生能源(太阳能、地热)和绿色建材(低碳混凝土、再生材料)和高效能源系统(热泵、智能电网)实现全生命周期碳中和、AIoT(人工智能+物联网)的全屋智能系统与挑高客厅融合等。
总之,第四代住宅的面世,推动了住宅从“居住功能”向“生活场景”转型,它不仅是物理空间的革新,更是对生活方式、社会关系和生态责任的重新定义。项目组后续会致力于设计更多更好的迭代“好房子”,以满足人民日益增长的美好生活需要。
注:本文所附的项目数据、户型图、剖面图和效果图等均非项目的最终成果,最终应以政府相关部门审批通过的成果为准。
设计团队:建筑一院房地产类型设计组
设计主持与总创:庞吉宁
设计技术总负责:何江炜
设计主创:黄 佳、梁 怡、唐诗宇
建筑设计:胡朝昱、屈 炫、李 洁、马玉红、叶步云、杜泰阳、侯德才、郭昊宸、赖 雯、李兴利
结构设计:何瑞斐、全敏通、林海瑛、朱春华、覃莫愁、张宝琛、滕 达、杨 翰
给排水设计负责人:韦 慧
电气设计负责人:邓克军
暖通设计负责人:姚华秀
项目秘书:刘 楠

团队深耕房地产设计20年,团队秉承“策划好生活,设计好房子”的美好愿景,依托自身的“五力”——即策划、规划、建筑方案、施工图的“一体化研发设计能力”;对景观、装饰、BIM、新能源等专业的“统筹能力”;与规划、技审、测绘等部门的“沟通能力”;与对营销、广告、物业运营的“协同能力”以及对建造的“控成本能力”。在实践中中深度融入房地产开发的“投、融、产、销”全过程,快速设计、及时响应,为开发企业提供优质的全过程服务。
团队业绩:
中海国际社区、万科城(一期)、宝能五象湖壹号、旭辉 · 湖山樾、联发 · 君澜、联发臻品、联发尚筑、联发君悦、中国铁建 · 安吉山语城、中国铁建 · 凤岭国际城、钦州恒大学府、南宁恒大城(一期)、南宁彰泰郡、彰泰悦湖居、招商 · 樾园、天玺国际中心、广源凤岭壹号院、金地山海领誉、南宁大华语山、南宁碧桂园 · 时代城、威宁首府、威宁和府、威宁青云村、兴宁 · 大唐果、人和 · 莱茵鹭湖、荣和公园里(南区)、荣和 · 邕江华府、云星钱隆首府F地块、云星海景台、丰泽 · 紫薇府、丰泽 · 公园御府等
业务联系
刘 楠:18178622876

