南宁市青秀区金湖路58号广西建设大厦3楼
0771-8888888
gxjsgcxfxh@163.com
530028
㊺常见问题解析丨避难层(间)外窗开启问题
来源:广西建设工程消防协会
时间:2025-04-29
㊺常见问题解析丨避难层(间)外窗开启问题
问题:
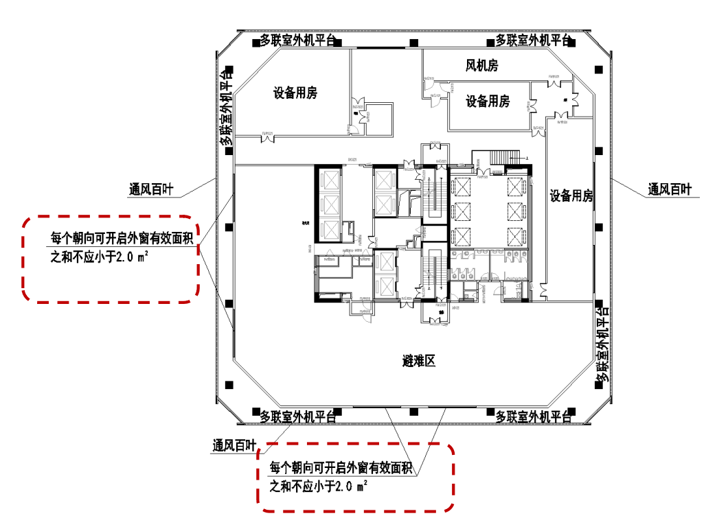
采用自然通风方式防烟的避难层中的避难区仅在一个朝向设置可开启外窗;有效面积小于避难区地面面积的2%,或在不同朝向设置外窗时,未同时考虑总有效面积不小于地面面积的2%与每个朝向的面积不小于2㎡,导致朝向开启面积不足。解答:
参考依据:
应符合《消防设施通用规范》GB 55036-2022 第11.2.4条的规定。
参考做法:
设计单位设计人员应确保采用自然通风方式的避难层(间)有不同朝向的可开启外窗,且开启面积须满足相关标准的要求,避难层自然通风窗设置见图1。
▲图1 避难层自然通风窗设置平面示意图
来源:《广西建设工程消防设计审查验收常见问题汇编》

